
35’ LOT
The Aston
2,782 sq. ft.
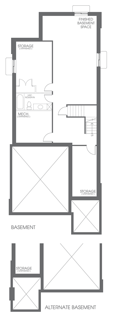
PLUS 448 sq. ft. of finished basement space
GROUND FLOOR

SECOND FLOOR

BASEMENT

Areas and dimensions are approximate. Layout may be reverse of the unit purchased. Prices, figures, illustrations, sizes, features and finishes are subject to change without notice. E. & O.E.