 
    35’ LOT
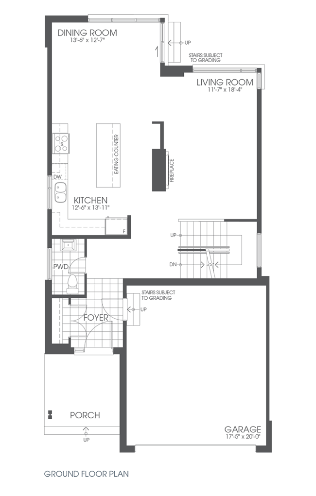
                                        GROUND FLOOR
                                         
                                    
                                                                     
                                    
                                        SECOND FLOOR
                                         
             
                                    
                                                                                                             
             
                                    
                                        BASEMENT
                                         
                                    
                                 
                                    Areas and dimensions are approximate. Layout may be reverse of the unit purchased. Prices, figures, illustrations, sizes, features and finishes are subject to change without notice. E. & O.E.
 
                     
                                         
                                        