
44’ LOT
GROUND FLOOR

SECOND FLOOR

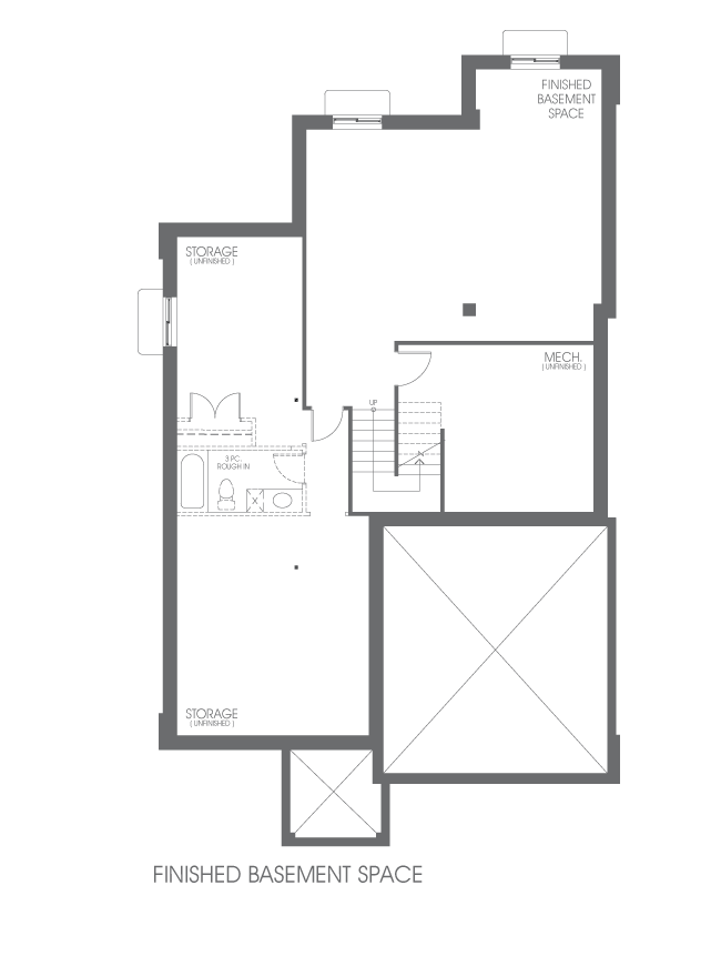
BASEMENT

Areas and dimensions are approximate. Layout may be reverse of the unit purchased. Prices, figures, illustrations, sizes, features and finishes are subject to change without notice. E. & O.E.