Riverside South

44’ LOT

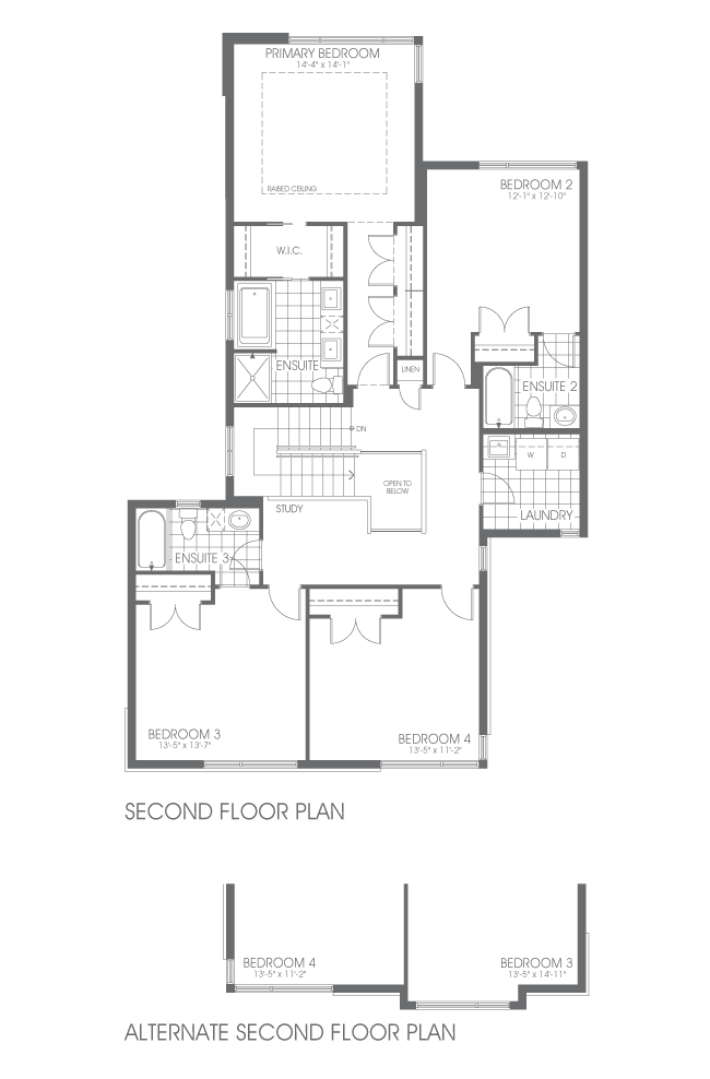
The Walden

2,790/2,798 sq. ft.

PLUS 560 sq. ft. of finished basement space

DOWNLOAD PDF

ELEVATION

ALTERNATE


GROUND FLOOR Walden Ground Floor
SECOND FLOOR Walden Second Floor
BASEMENT Walden Basement

Areas and dimensions are approximate. Layout may be reverse of the unit purchased. Prices, figures, illustrations, sizes, features and finishes are subject to change without notice. E. & O.E.



SIGN UP TO RECEIVE COMMUNITY UPDATES AND EXCLUSIVE ACCESS TO NEW RELEASES

* Legal first and last name required to pre-register for releases

* Required Fields