Kanata Lakes

35’ LOT

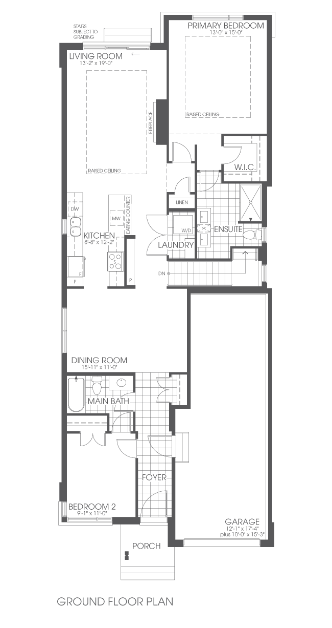
The Hawkeswood

1,474 sq. ft.

PLUS 443 sq. ft. of finished basement space

DOWNLOAD PDF

ELEVATION

 

GROUND FLOOR Hawkeswood Ground Floor
BASEMENT Hawkeswood Basement

Areas and dimensions are approximate. Layout may be reverse of the unit purchased. Prices, figures, illustrations, sizes, features and finishes are subject to change without notice. E. & O.E.



SIGN UP TO RECEIVE COMMUNITY UPDATES AND EXCLUSIVE ACCESS TO NEW RELEASES

* Legal first and last name required to pre-register for releases

* Required Fields